Il Palazzo

A pochi passi da una delle vie principali del centro di Taranto, il palazzo è stato oggetto di un recente intervento complessivo di ristrutturazione, condotto con particolare attenzione e cura dei dettagli e delle finiture e caratterizzato dalla scelta di linee sobrie e raffinate, di colori tenui e di illuminazioni discrete e diffuse. Il palazzo si compone di cinque livelli complessivi, di cui uno a destinazione commerciale e quattro destinati a residenze, tutte con doppio affaccio, su strada e su ampio cortile interno. E’ dotato di ascensore e gli spazi comuni, androne e vani scala, sono caratterizzati da scelte architettoniche eleganti e minimali. E’ dotato di un’area a parcheggio coperta e di pertinenza privata, con accesso diretto dalla strada.

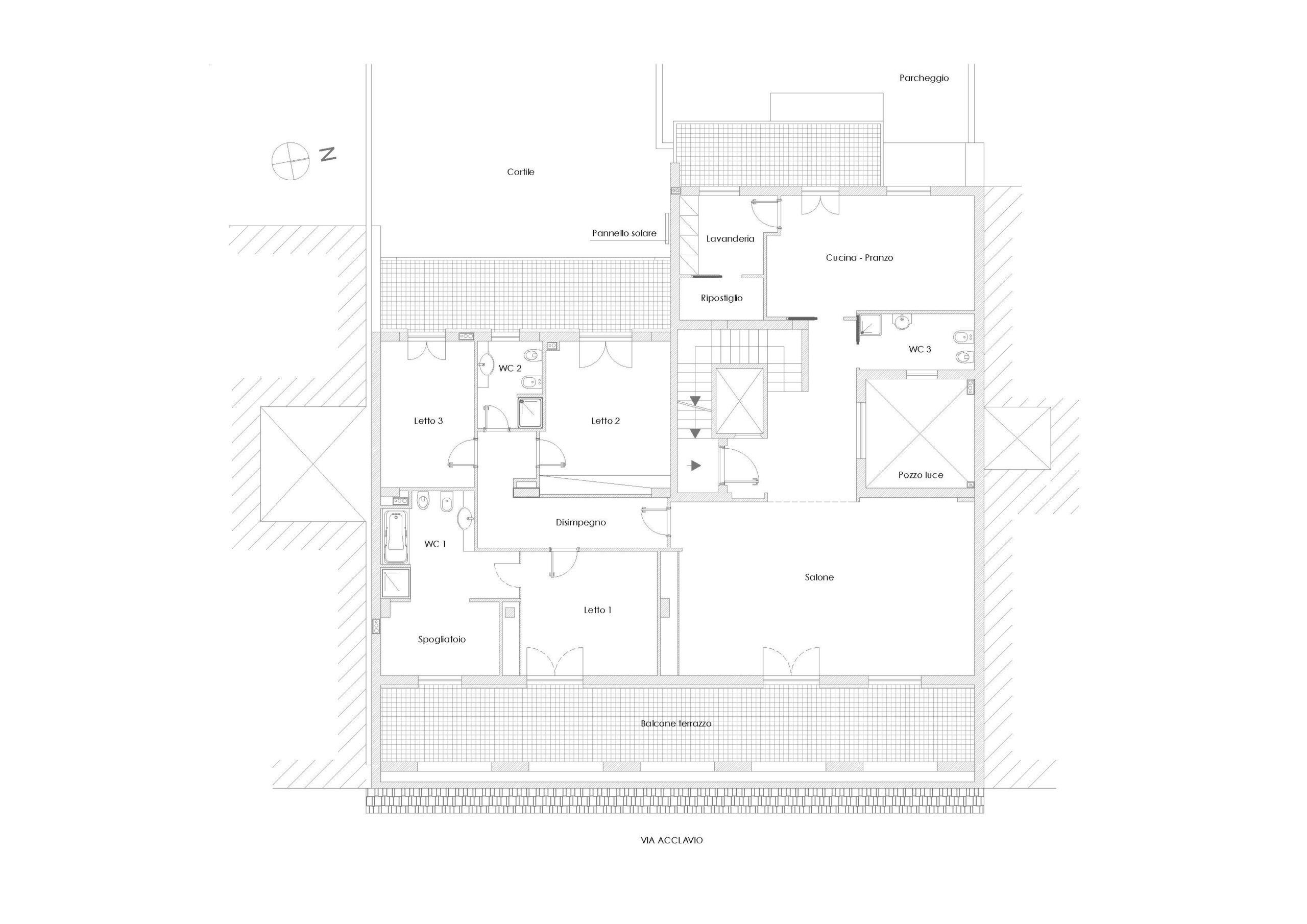
Attico

Un intero piano di 215 mq con zona giorno e zona notte

Soluzione unica

Locali commerciali

loc

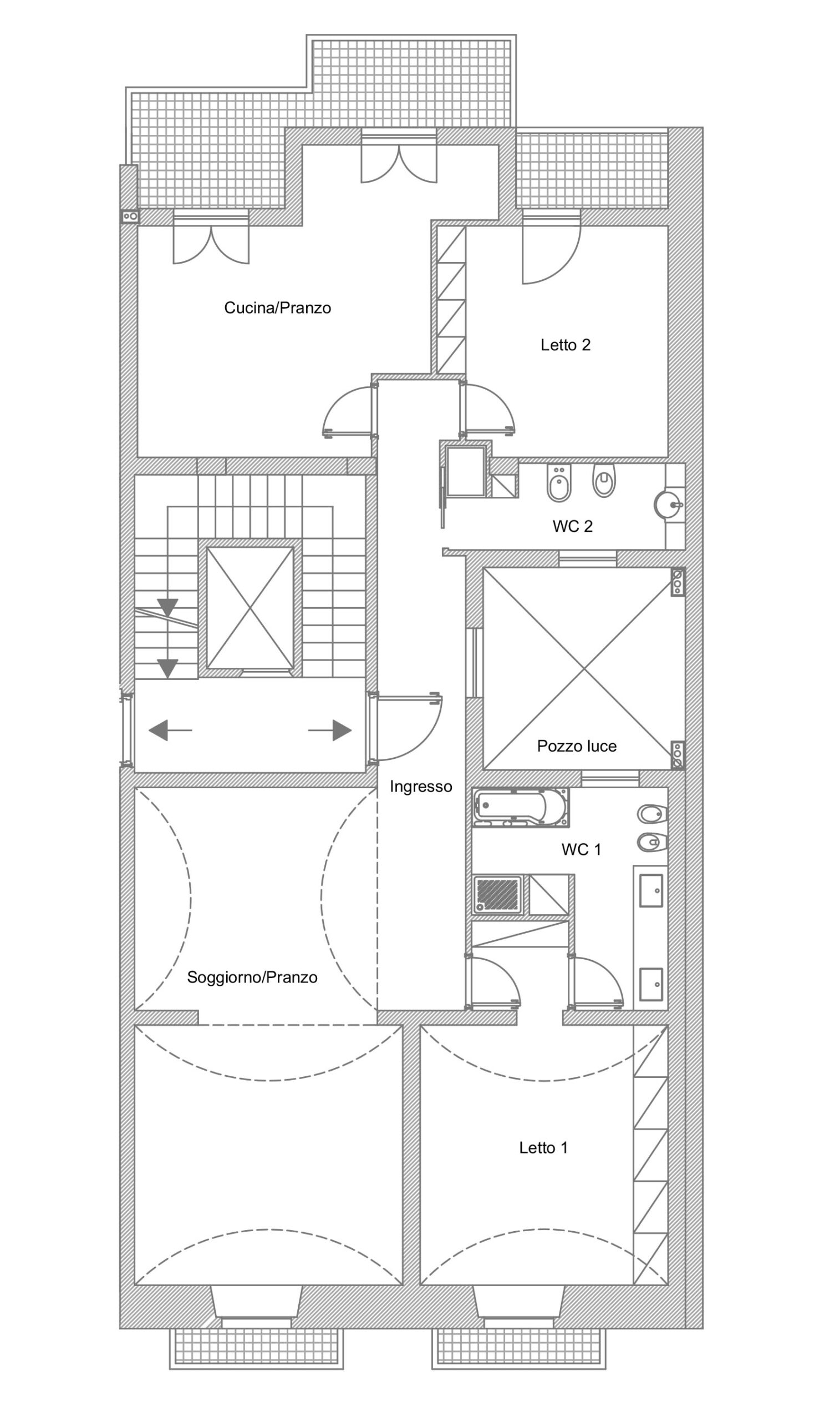
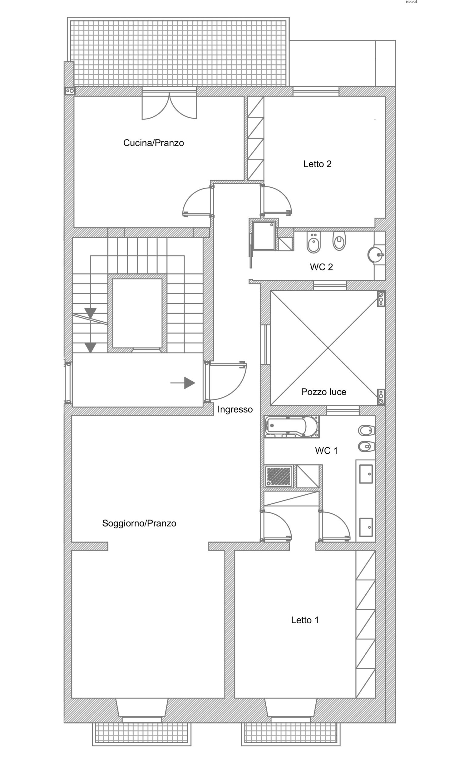
Planimetrie

Tipologia Mq Camere da letto Riscaldamento Allarme Planimetria
Piano Primo A 125 2 a pavimento SI Visualizza
Piano Primo B 150 2 Radiatori Si Visualizza
Piano Secondo A 125 2 a pavimento si Visualizza
Piano Secondo B 150 2 Radiatori si Visualizza
Piano Terzo a 125 2 a pavimento Si Visualizza
Piano terzo b 150 2 radiatori si Visualizza
Attico 215 3 a pavimento si Visualizza
Commerciale a 200 n.D. N.D. N.d. Visualizza
Commerciale B 350 n.D. N.D. N.d. Visualizza

Sei interessato ?

Questo È il momento di scoprire le nostre proposte

Contattaci

Indirizzo: Immobile

Via Acclavio 28,
74123  Taranto ITALY

Sede Legale:

Via Anfiteatro, 10
74123  Taranto ITALY

Telefono:

+39 099 4528134

Fax:

+39 099 4537240

E-mail:

info@cpcostruzionidipregio.com

Contattaci

    © Caramia Partners S.r.l. P.iva 01050110731. MADE BY db